40 stop rozšiřitelný kontejner domů
Budova: 72m2 (796square noha)
Skládací velikost pro cestování: 11808 mm (L) x 2260 mm (W) x 2550 mm (H) nebo 2900 mm (H)
Rozšiřte velikost pro život: 11808 mm (L) x 6420 mm (W) x 2550 mm (H) nebo 2900 mm (H)
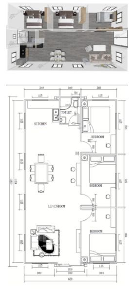
Vnitřní plán domu: 3 ložnice, 1 obývací pokoj, 1 kuchyň ve tvaru L, 1 sestavená koupelna a mokré separace atd.
Instalace: 90% předinstalováno v naší továrně může nastavení provést 6 pracovníků do 1 dne.

40 stop rozšiřitelný kontejner domů
Zaměřit se na kvalitu
Více než16 roky zkušeností a 10 kroků v našichkvalitníŘídicí systém může zajistit, aby naše výrobky splňovaly požadavky našich klientů 100%.Načítání: 1 jednotka/40'HQ nebo 1 jednotka/40'0T
Přizpůsobené dostupné
TYGB 40ftRozšiřitelný kontejner domů
TYGB 40ft rozšiřitelný kontejner Home obleky ekologicky přátelské a flexibilní životní řešení. Náš rozšiřitelný kontejnerový dům je nyní k dispozici pro export do Austrálie a USA a nabízí bezkonkurenční kombinaci pohodlí, udržitelnosti a přizpůsobivosti.
Dodáváme úplnou dokumentaci pro všechny stavební výrobky, požární hodnocení, vodotěsnost, elektrické standardy, tepelné a šumové izolaci, hodnocení požáru křoví (BAL), retardaci toku/požáru a certifikaci skla. Vnější stěny jsou vyrobeny z 75mm sendvičového panelu.
Velikost
Rozšiřte velikost: L11808*W6420*H2550mm
Skládaná velikost: L11808*W2260*H2550mm
Celková plocha: 72m²
Hmotnost: asi 8 tun
Typy

❤ Styl 1: 3 ložnice 40 stop rozšiřitelný kontejner domů se střechou, vyřezávanými panely, terasou
Vnitřní výška: 2,26 m
Styl 2: 2 ložnice 40 stop rozšiřitelný kontejner domov s deskou zastínění slunce
Vnitřní výška: 2,4 m


Styl 3: 40 stop šedá rozšiřitelný kontejner
Vnitřní výška: 2,26 m
40 stop rozšiřitelný kontejner Home má 3 stropy výšky na výběr: 2,26 m, 2,4 m, 2,6 m pro více prostoru.
Rozložení


Proč tygb?
Služba kvality značky
Vodotěsná: 99,99%
Těžší 30% než jiné továrny
Celé standardy AU: značka kódu, značka vody, SAA, Nata atd. (Ne částečné)
Doprava do Austrálie: 80-100 sad za měsíc

Rozšiřitelný skládací dům tygb
Externí: 75 mm EPS
Interní: 50 mm EPS
Máme výrobní linku sendvičových panelů

Přizpůsobené možnosti
Upgradování opláštění: Vyberte si z prémiových obkladových materiálů, jako jsou hliníkové kompozitní panely nebo zvlněná ocel pro zvýšenou trvanlivost, estetika a odolnost proti povětrnostním povětrnostem.
FRP zastřešení: Střecha vyztužená vlákna (FRP) je vynikající volbou pro lehké, ale silné střešní roztoky, které nabízejí vynikající izolaci a odolnost proti korozi.
Eco paluba: Přidejte venkovní obytný prostor s ekologickou palubou vyrobenou z udržitelných materiálů. Tato ekologická volba je plynule mísí s přírodou a poskytuje perfektní oblast pro relaxaci nebo zábavu hostů.
Přívěs: Pro ty, kteří potřebují mobilitu, mohou být naše kontejnerové domy namontovány na přívěs a přeměnit je na přenosné obytné prostory, které lze snadno přemístit.
Sluneční soustava: Vyujte sílu Slunce pomocí našeho integrovaného systému solárních panelů. Toto řešení obnovitelné energie snižuje náklady na elektřinu a zajišťuje, že váš domov zůstává soběstačný, a to i na odlehlých místech.
Parametr specifikace
|
Hlavní materiál |
Galvanizovaná ocelová konstrukce se stěnou a dveřmi sendvičové panely, okna atd. |
|
Životnost |
30-40 let |
|
Barva |
Podle požadavku zákazníka bílá, černá, černá, šedá nebo opláštění (mnoho možností). |
|
Ocelová struktura |
3mm horká galvanizovaná ocelová konstrukce se 4 rohovými odlitky a 18mm broušenou deskou; Podlaha 2 mm PVC; Galvanizovaná ocelová základní deska. |
|
Střecha |
3-4mm hot galvanizovaná ocelová struktura se 4 rohovými odlitky a 50mm EPS nebo PU sendvičový panel +panel FRP; Galvanizovaná ocelová střecha. |
|
Sloupce |
3mm horká galvanizovaná ocelová struktura |
|
Zeď |
50/75/100mm EPS/Rock Wool/PU sendvičový panel |
|
Dveře |
Posuvné vstupní dveře jsou vyrobeny z rámu z hliníkové slitiny, rozbitého můstku hliníku. Dimenze: W1930 mm*2270 mm dvojitý zasklení s temperovaným sklem Tloušťka: 5/10/5 mm. Může být přizpůsoben podle poptávky. |
|
Okno |
Naše okna jsou vyrobena z rámu slitiny hliníku, rozbitého hliníku. Dimenze: W930 mm*H1100 mm, dvojité zasklení s bezpečnostním sklem v tloušťce 5/10/5 mm. |
|
Soupravy připojení |
Soupravy připojení PVC pro podlahu, strop a stěny. |
|
Elektřina |
Standard 3C/CE/CL/SAA, s distribuční krabicí, světla, spínač, zásuvky atd. |
|
Volitelné příslušenství |
A/C, ohřívač vody bez nádrže, mikrovlnná trouba, kancelář, kolej, toaleta, kuchyň, koupelna, sprcha, ocelová střecha, elektrické zařízení pro ubytování, kaddingové panely, dekorativní materiál, nábytek, sanitární, kuchyň atd. |
Výhody rozšiřitelného kontejneru 40 stop
1. Anti-rust: Všechny materiály používají horkou galvanizovanou ocel;
2. Snadná a rychlá instalace . 2 hodiny/set, ušetřit náklady na práci
3. vodotěsná: vodotěsná nástěnná deska Integrovaný design bez dřevěné stropní stěny;
4. ohnivzdor: Hodnocení požáru a známka
5. Představte si instalaci elektřiny a vody, kování koupelen
Používání
Dům, kancelář, kolej, obchod, bar, pohotovost, pomoc při katastrofách
Balíček a přeprava








Naši zákazníci
Kontaktujte nás
Pro vaši bezplatnou nabídku
Naše adresa (vítejte na návštěvu naší továrny)
Severně od silnice Xingwang a západně od Wuguan Road ve Wuyi County, Hengshui City, provincie Hebei (jižně od Hebei Yingtong Textile Technology Co., Ltd.).
Telefon WhatsApp
+86 132-9058-8365
jasonyao@tygbhouse.com

Hledat spolehlivého výrobce40 stop rozšiřitelný kontejner domů. Kontaktujte tým Tygb nyní.
Populární Tagy: 40 stop rozšiřitelný kontejner Home, Čína 40 stop rozšiřitelný kontejner domácí výrobci, dodavatelé, továrna
You Might Also Like
Odeslat dotaz













